top of page
HOMEWOOD COTTAGE
Phoenix, Arizona
​
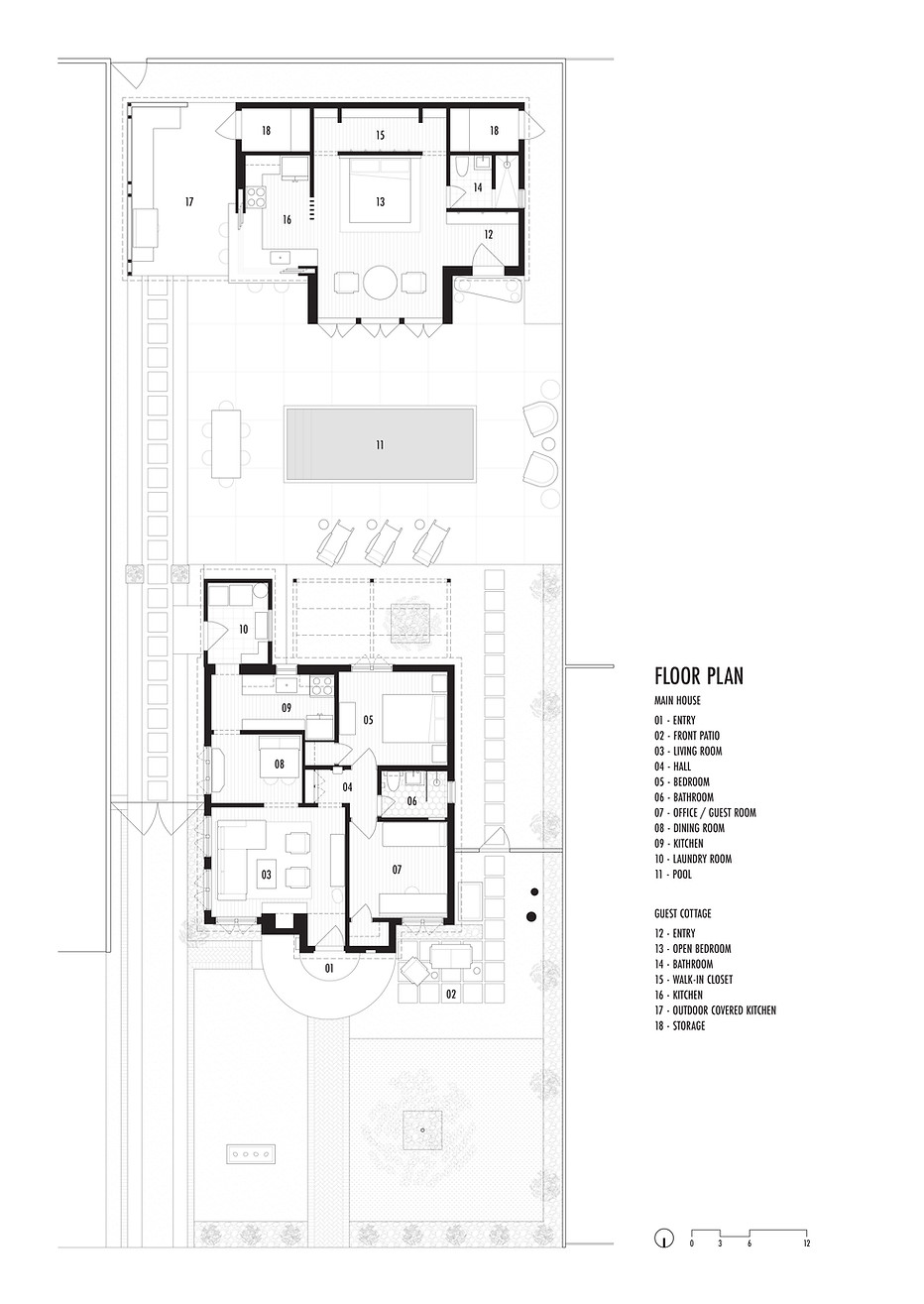
An alternate approach to expanding historic single-family residences, this proposal takes advantage of the city’s new ADU-friendly zoning laws to introduce a guest cottage at the rear of the property.
Designed as a discreet retreat for visiting friends and family—or as a short-term rental to provide additional rent income—the new structure redefines the backyard as a space for gathering. Between the two buildings, a swimming pool and covered outdoor kitchen create a private setting for rest and recreation.
Rooted in traditional Tudor building vocabulary set by the main house, the cottage pairs local flagstone with contemporary dark timber and copper accents, bridging historic craftsmanship with modern detailing. Tucked away from the street, it reimagines the backyard casita as more than an afterthought—an opportunity to shape a refined, beautifully crafted retreat.
bottom of page

